
From 1 House on 9 Acres

To 41 Homes

Sold to KB Homes for $1.25M







Site grew from 9 acres to 13.1 acres

Rezoned and approved for 96 affordable housing units plus a veteran garden

Going back to the original 1925 plat to reimagine the neighborhood

Butterfly Roof Render

Entitlements include medium- and high-density residential, light industrial, and vehicle storage overlays.

131-acre parcel with direct Polk Parkway access, prime for large-scale development.

Mixed-use vision with residential, industrial, and storage uses integrated into a master-planned site.

Expanded opportunities: large-scale vehicle and equipment storage supporting logistics and industrial demand.

Initial purchase: 22 acres from Habitat for Humanity.

24 acres added - 46 in total

Added adjoining parcels to expand footprint to 48.8 acres.

Completed assemblage: 7 total parcels, creating 63.4 contiguous acres.

THE START - 22 ACRES
Bought from Habitat for Humanity

FIRST EXPANSION - 24 ACRES
Added the first adjoining parcels.
Assemblage begins.

MOMENTUM - 48 ACRES
Now nearly 50 acres mid-size industrial site.

THE FINISH - 63 ACRES
Seven parcels later… 63.4 acres.
Full-scale industrial opportunity
Starting Point

One home on 9 acres
Subdivision Plan

First conversion: 25 lots
Final Plan

Expanded to 41 homes.
Builder demand soared.
Exit

Sold to KB Homes
(Street named “Cruz Court”)

Original Site

Subdivision Plan

Completion

Recognition

Awards
Habitat’s veteran housing plan

Utilities and boundary surveys showed heavy spend but no value.


Steep access, unsafe for housing, but viable for industrial

Repurposed Pan

Repositioned into a light industrial building site. Real value unlocked.

4.15 acres fronting US 98

Steep access, unsafe for housing, but viable for industrial

Plan B: Rezoned for affordable housing.

Plan C: Mixed-use self-storage and business park.
As a Habitat for Humanity board member, I led the build of their first-ever modern home.

Electrical, plumbing, drywall and everything but the AC was built by our 4-man team.

Finished Home

First modern-style Habitat home ever built.
4 bed, 2 bath

Completed and dedicated with the Habitat team. Proof that vision + teamwork can overcome any setback.

7.15 acres along Old Tampa Highway

Option A: Industrial site leveraging CSX rail adjacency.

Option B:
Townhouse community design.

Option C:
Traditional single-family residential.

The property across from our Butterfly Roof project. Initially mapped for 11 lots.

Parcel boundaries and first subdivision concepts.

Option A:
3 duplexes + 3 Butterfly Roof Homes.

Option B:
3 duplexes + 4 Butterfly Roof Homes.

Drainage easements eliminated one lot and weakened another.

What the duplex product would have looked like.

Dr. Mateo (client), civil engineer, and land planner collaborating on the vision.

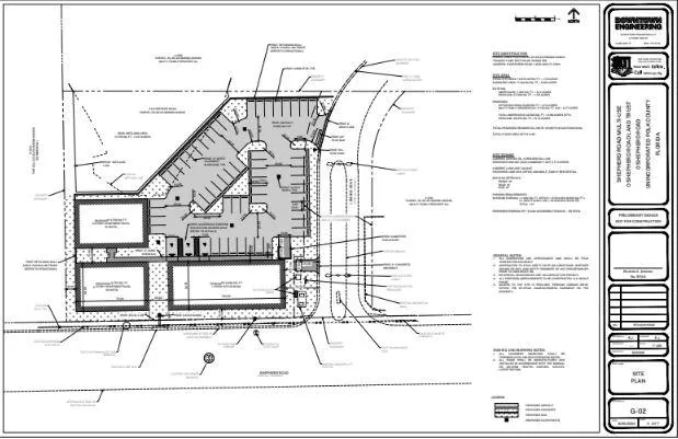
1.72-acre parcel identified for redevelopment

Wetlands analysis revealed development constraints

Proposed layout: dentist office with adjacent multifamily.

Improved site plan showing placement of office and three-story apartments.

Improved site plan showing placement of office and three-story apartments.

Proposed layout: dentist office with adjacent multifamily.

Reality: only 4 acres were truly buildable

Redesigned into a 96-unit affordable apartment complex

Added community value with a public trail to Simpson Park
✅ Deal Review

✅ Contract Rewrite

✅ Contract Rewrite

✅ Development Roadmap

✅ Development Roadmap

✅ Profit Strategy
















































































Charles Emory Hess - 6834 Brookridge Trial, Lakeland, Fl


Alice Marie Chaney - 5235 Bailey Rd Mulberry, Fl




Chauhan Harish Chander - 2807 Vintage View Loop, Lakeland, Fl













Chrissy Haag - 3110 Old Tampa Hwy, Lakeland, Fl


Norma Jean Mainse - 2032 Shakespeare St, Lakeland, Fl











Tammy Frazee - 8805 Pine Crest Dr & 8826 Hammock Loop, Polk City, Fl



Angel Hernandez - 714 Hull St, Lakeland, Fl




Anitia Ives - 5923 Laurel Oaks Dr, Lakeland, Fl










Jackeline Irineo - 402 w 10th st, Lakeland, Fl











Thomas Dewayne Freeman - 219 Mary Ellen Ave, Seffner, Fl


Ray Frank Childs - 1013 Jewell Ave, Lakeland, Fl

Wayne Growe - 5811 Coveview Dr, Lakeland, Fl


William & Jacqueline Hay - 4430 Thompson & Royal Oaks, Mulberry, Fl




Kevin & Latisha Anderson - 8146 Woodvine Cir, Lakeland, FL


Ramps Bautista


Coy Mullins - 4025 Carter Ct, Polk City, Fl


Albert Schaefer - 1500 Belmont Ave, Mulberry, Fl











Randell & Towana Ernst - 5428 Weber St, Lakeland, Fl


Joseph Paul Lopes Jr - 5011 Christopher Ct, Lakeland, Fl




Timothy Dunn - 3475 w Tanager Lane, Mulberry, Fl




Ricky Paul - 3903 Oakwood Cir, Lakeland, Fl





Commercial Listing - 709 N Vermont Ave, Lakeland, Fl


